СТРАНИЦА НЕ НАЙДЕНА!
Свежие, новые объявления о продаже, аренде недвижимости, квартиры, комнаты, дома, машиноместа, коммерческая недвижимость в Подмосковье, Красногорске
8


Комната в 2-к квартире, 23м², 3/5 этаж
2 500 000 ₽ 108 700 ₽ за м²
мкр. Тёплый Бетон, Октябрьская 9
Сталинский дом, кирпичный. Светлая, просторная комната с потолками 3.20 м и балконом. Ремонт косметический. Двойная кухня 11,2 м. Санузел раздельный. Если Вам необходима мебель - можете расчитывать на...
7


Комната в общежитии, 9м², 1/5 этаж
1 200 000 ₽ 133 400 ₽ за м²
мкр. Губайлово, Ленина 59/1
Пластиковое окно, пол ламинат, точечное освещение - заезжай и живи! Квартира малонаселенная, проживают три человека. Комнаты соседей отделены отдельным коридором. Возможна покупка второй комнаты! Пос...
10


Комната в общежитии, 15м², 3/3 этаж
1 600 000 ₽ 106 700 ₽ за м²
Ильинский тупик 11
Окно стеклопакет, пол паркет, потолок натяжной. Мебель частично остаётся. Один взрослый собственник,Срочно,Торг. Рассмотрю обмен с доплатой на двух комнатную квартиру в г. Красногорск...
3
![комната в общежитии, 17м2, 5/9 этаж]()

Комната в общежитии, 17м², 5/9 этаж
2 100 000 ₽ 123 600 ₽ за м²
мкр. Тёплый Бетон, Школьная 2
мната в общежитии 17,7 м3 в отличном состоянии после ремонта собственник приватизированная без посредников от Москвы 2 километра, ж/д станция павшино рядом магазины торговые центры, кинотеатр, рынок ,...
2
![комната в 4-к квартире, 13м2, 3/4 этаж]()

Комната в 4-к квартире, 13м², 3/4 этаж
1 370 000 ₽ 105 400 ₽ за м²
мкр. СГШ, Чайковского 13
ица Чайковского ,дом 11.3/4 кирпичного домаПродам комнату 13.1м в 4-х комнатной квартире,общей площадью 75 м,кухня 8м,с/у раздельный .Так же продаются еще 2 комнаты в этой же квартире :площадь - 17.2 ...
5


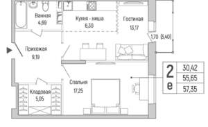
Комната в 2-к квартире, на длительный срок, 49м², 3/9 этаж
13 000 ₽ в месяц
мкр. Чернево-1, Ленина 47к2
Есть все необходимое. Проведен интернет.
8
9
9
2
0
2
9
4
0
5
0...
Собственник, 03.05.2022
3


Комната в 2-к квартире, на длительный срок, 23м², 2/16 этаж
8 000 ₽ в месяц
мкр. Павшинская Пойма, Павшинский бульвар 5
Вторая комната закрыта на ключ и сдаваться не
будет. Все необходимое для проживания имеется (все что на фото, остается в момент аренды). Также подключен телевидение. интернет и кабельное ...
Агентство, 25.04.2022
6


Комната в 2-к квартире, на длительный срок, 20м², 3/17 этаж
7 500 ₽ в месяц
мкр. Павшинская Пойма, Игната Титова 7
Вторая комната не сдается . В хорошем состоянии, после косметического ремонта. Имеется все необходимое мебель, быт. техника для комфортного проживания. Квартира чистая. На длительный срок!...
Агентство, 15.08.2022
4
![Комната в 2-к квартире, на длительный срок, 20м2, 6/9 этаж]()

Комната в 2-к квартире, на длительный срок, 20м², 6/9 этаж
9 000 ₽ в месяц
мкр. Чернево-1, Ленина 47к1
Комната в двухкомнатной квартире, хорошая чистая квартира. Вторая комната закрыта и сдаваться не будет. Мебель и бытовая техника есть. Можно с животными и детьми. По всем вопросам набирайте Оксана:
...
Агентство, 19.08.2022
4
![Комната в 2-к квартире, на длительный срок, 48м2, 3/5 этаж]()

Комната в 2-к квартире, на длительный срок, 48м², 3/5 этаж
6 000 ₽ в месяц
Октябрьская 9
Вся необходимая бытовая техника также имеется. На длительный срок. Для платежеспособных людей. Звоните!...
Агентство, 15.05.2022
3


Участок 7 сот., садоводство, 3 км от города
5 800 000 ₽ 8 300 ₽ за сотку
131
Гаврилково, 5 км. от МКАД по Куркинскому шоссе, 10 мин. транспортом до метро Планерная. Участок имеет правильную прямоугольную форму. На участке растут плодовые деревья и кустарники. Имеется небольш...
Собственник, 19.03.2021
15


Участок 6 сот., садоводство, 12 км от города
2 999 000 ₽ 5 000 ₽ за сотку
244
Живописные места и удобная логистика (Новорижское и Ильинское шоссе). На въезде охрана и автоматический шлагбаум. Камеры по периметру. Асфаль-тированное и насыпное дорожное покрытие внутри. Очень мно...
Собственник, 09.06.2022
3


Складское помещение, 1300 м²
325 000 ₽ в месяц
Ильинский тупик вл6
Возможно деление площади. Высота потолков 4,5 м . Электричество 300 кВт. Наличие пандуса и парковки для фур. Хорошая транспортная доступность. Новорижское шоссе 500м. Рядом станция МЦД Красногорская,...
Собственник, 12.10.2020
2


Складское помещение, 300 м²
118 500 ₽ в месяц
Ильинский тупик вл6
Возможно деление- увеличение площади. Высота потолков 4,5 м . Электричество 300 кВт. Наличие пандуса и парковки для фур. Хорошая транспортная доступность. Новорижское ш. Илиинское ш 500м. Волоколамс...
Собственник, 19.10.2020
14


Помещение свободного назначения, 75 м²
130 000 ₽ в месяц
ЖК Изумрудные Холмы, Игоря Мерлушкина 1
Высота потолков 3,15 м. Идеально подходит под любой вид коммерческой деятельности и торговли: продовольственный магазин, магазин овощи-фрукты, мясная лавка, молочный магазин, хозтовары, кафе, пиццерию...
Агентство, 18.09.2020
10
![Офисное помещение, 70 м²]()

Офисное помещение, 70 м²
89 000 ₽ в месяц
район Сокольники район, Стромынка 7к2
Коммунальные платежи включены. На территории имеется кафе. Отдельный вход. Удобное месторасположение. Парковка...
Собственник, 13.10.2020
3
![Производственное помещение, 500 м²]()

Производственное помещение, 500 м²
125 000 ₽ в месяц
мкр. Южный, Ильинский тупик вл6
Высота потолков 4,5 метров. Электричество 300 кВт возможно увеличение мощности. Наличие пандуса и парковки для фур. Хорошая транспортная доступность Рядом станция МЦД Красногорская, Павшино 10 минут п...
Собственник, 09.10.2020
Закладки
Личный кабинет





























































































































